2006 Subaru Forester Radio Wiring Diagram
Vt Commodore Ignition Wiring Diagram, Complete Wiring Diagrams For Holden Commodore VT, VX, VY, VZ, VE, VF, 5.36 MB, 03:54, 32,796, John Amahle, 2018-08-01T19:37:41.000000Z, 19, Vt Commodore Ignition Wiring Diagram, to-ja-to-ty-to-my-to-nasz-swiat.blogspot.com, 1272 x 1800, jpeg, bcm pcm 12j swiat nasz, 20, vt-commodore-ignition-wiring-diagram, Anime Arts
Forester (smart key) alarm/remote start. Impreza (pictorial) alarm/remote start. Subaru engine prep 6a. Install subaru engine 6b.
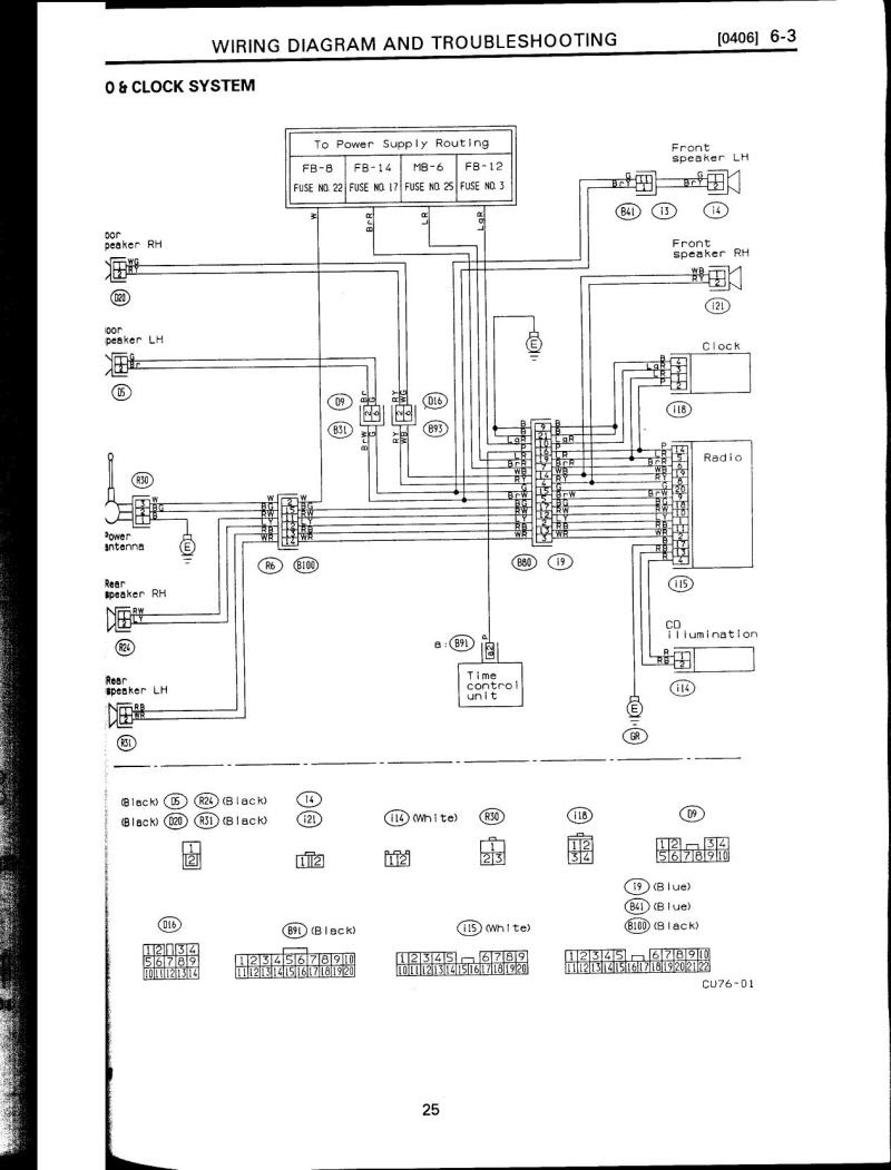
Final elements ugly’s evs aircooled vanagon if you're interested in converting your wiring harness yourself, you may. Having a subaru stereo wiring diagram makes installing a car radio easy. Find the subaru radio wiring diagram you need to install your car stereo and save time. Posted by anonymous on apr 30, 2012. Where can i find a 2006 subaru forester radio wiring diagram? How i find a 2006 subaru forester car stereo wiring diagram? Whether you’re an expert subaru forester mobile. Having a subaru stereo wiring diagram makes installing a car radio easy. Find the subaru radio wiring diagram you need to install your car stereo and save time.
2006 Subaru Forester Radio Wiring Diagram - BIXIN1303
2006 Subaru Forester Radio Wiring Diagram
2006 Subaru Forester Wiring Diagram - Wiring Diagram
2006 Subaru Forester Wiring Diagram - Wiring Diagram

Stereo Install assistance - Subaru Forester Owners Forum

2006 Subaru Forester Wiring Diagram - Wiring Diagram
06 Subaru Forester Interior Wiring Diagram - Wiring Diagram Schemas
2006 Subaru Outback Stereo Wiring Diagram - madcomics
Subaru Forester Radio Harness - Greatest Subaru
2007 Subaru Wiring Diagram - 88 Wiring Diagram
